NILAN Compact GEO3
V současnosti absolutní vrchol technologie NILAN. Jednotka NILAN Compact byla vyvinuta z úspěšných modelů pro mezinárodní soutěž Solar Decathlon, což je prestižní souboj o nejúspornější dům a technologie světa pod záštitou ministerstva energetiky USA. Jednotky NILAN byly v této soutěži již třikrát použity ve vítězných domech a jsou historicky naprosto nejúspěšnější technologií.
Jednotka využívá ke zpětnému zisku energie principu aktivní i pasivní rekuperace, což jí dává unikátní vlastnosti oproti konkurenčním zařízením a uživatelům nabízí maximální využití energie odpadního vzduchu. Compact dokáže ohřát přívodní vzduch a zároveň levně ohřát teplou vodu. Jednotka s označením K (Kühlung) je vybavena funkcí chlazení přívodního vzduchu. Díky této funkci je možné větrat i za velmi vysokých venkovních teplot. Přívodní vzduch je dle požadavku uživatele chlazen až k 5 °C. Získané teplo z přívodního vzduchu je následně využito pro ohřev teplé vody a tak je chlazení provozně zdarma. V zimě jednotka pracuje bez omezení i za velmi nízkých teplot bez jakékoliv potřeby předehřevu – nenamrzá. Jednotky lze standardně vybavit i topným zdrojem pro teplovodní otopné soustavy. Klient má tak na ploše jen 0,54 m 2 komplexní technologii pro příjemné klima a ohřev teplé vody i vytápění v rodinném domě. Pokud je zařízení označeno WT (WärmeTauscher), je v nádrži přídavný teplovodní výměník pro napojení externího zdroje. Produkční řada zahrnuje i modely XL se zvýšeným výkonem ventilátorů 500 m3 /h, modely Nordic s přídavným dohřevem vzduchu alternativně pro extrémní mrazy nebo vytápění pasivních domů vzduchem. GEO 3 je vestavěné tepelné čerpadlo systému země – voda přímo do jednotky Compact. Vzniká tak jedinečné univerzální řešení i pro úsporné vytápění. Uživatel snadno ovládá vše potřebné pro zajištění čerstvého vzduchu, tepla a teplé vody v domě.
GEO 3 je velmi úsporné tepelné čerpadlo s invertorovým kompresorem, které dosahuje vynikajícího SCOP 5,17. SCOP zahrnuje úplně vše: provoz oběhového čerpadla, provoz řídicího systému, elektroniky, celoroční stand-by režim, ohřev kompresoru, zkrátka kompletní spotřebu elektrické energie dává do poměru s celkově vyrobenou tepelnou energií. V konkrétním případě za 1 kWh zaplacené elektrické energie získáváte více jak 5 kWh vyrobeného tepla.
- Compact – schéma funkce
Objem vzduchu
Min: 50 m3/h
Max: 275 m3/h
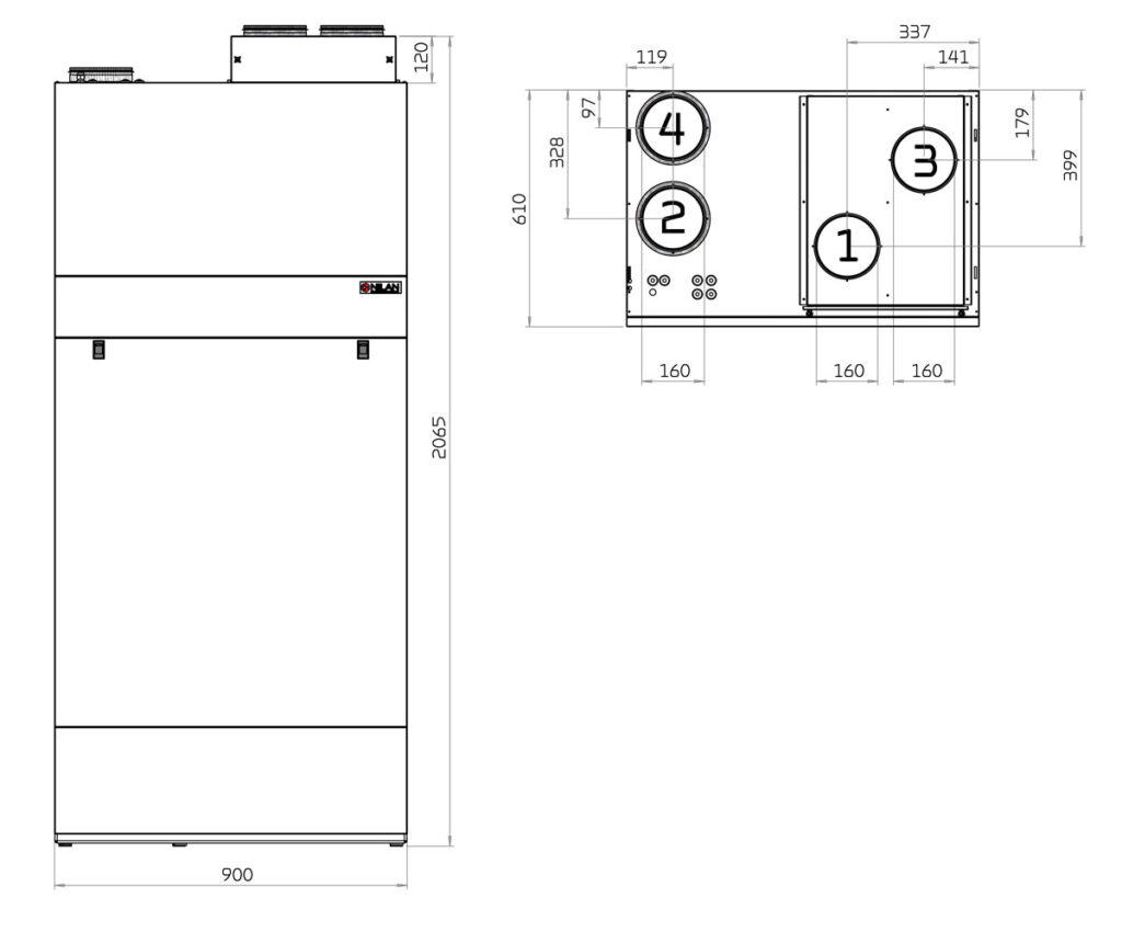
| Rozměry (Š x H x V) | 900 x 610 x 2065 mm |
| Hmotnost | 257 kg (včetně tepelného čerpadla GEO 3) |
| Skříň jednotky | Alu / Zn plech, lakovaný (bílá – RAL 9016) |
| Typ kompresoru | Pístový |
| Typ ventilátorů | Komorové EC ventilátory |
| Třída filtrace | ISO Hrubé > 90% (G4) |
| Vzorec spotřeby ohřívače teplé vody | L (velký) |
| Chladivo | R410A, 1100g |
| Bivalentní zdroj elektrokotel | 1 x 3 kW |
| Přípojná hrdla | Ø 160 mm |
| Odtok kondenzátu | PVC Ø20 x 1,5 mm |
| Napájení | 230 V (± 10%), 50/60 Hz |
| Maximální příkon | 2,2 kW / 9,6 A |
| Standby spotřeba | 3W |
| Stupeň krytí | IP31 |
| Provozní teploty | -20 / +40 °C |
| Externí ztráta | < 1,1 % |
| Vnitřní ztráta | < 1,4 % |
| Integrovaná expanzní nádoba | 8 l |
Výkon
Větrací výkon standardní jednotky jako funkce větracího objemu a externí tlakové ztráty. Testováno podle normy EN13141-7 se filtrem dle třídy ISO hrubost > 90 % (G4) a bez dohřevu vzduchu. Hodnoty SEL obsahují celkovou spotřebu elektřiny jednotky bez ovladače.
Přepočítací faktor: J/m3 : 3600 = W/m3/h.
POZNÁMKA: Hodnoty SEL jsou měřeny a uváděny jako celková hodnota pro oba ventilátory.

Účinnost rekuperace
Účinnost rekuperace standardní jednotky s protiproudým výměníkem. Testováno podle EN13141-7, účinnost za sucha.

Topný výkon
Topný výkon Qc [W] jako funkce objemového průtoku qv [m3/h] a teploty venkovního vzduchu [°C], podle EN 14511 odpadní vzduch = 21 °C.
Celkový topný výkon je primárně použit na krytí ztrát větráním, pokud vzniká s ohledem na objemový průtok venkovního vzduchu přebytek topného výkonu, lze jej využít jako příspěvek k vytápění místnosti.
Ztráta větráním: čárkované křivky
Celkový topný výkon: plné křivky

COP vzduch-vzduch
Topný faktor COP [-] jako funkce venkovní teploty [°C] a objemového průtoku qv [m3/h] podle EN 14511 při teplotě odpadního vzduchu = 21 °C.
Poznámka: COP se počítá pro tepelné čerpadlo a protiproudý výměník podle EN 14511.

udetemperatur – venkovní teplota
DISPOZIČNÍ MNOŽSTVÍ TEPLÉ VODY z nádrže při ohřevu na 40 °C, 50 °C a 60°C.

Akustika
Zvuková data platí pro qv = 210 m3/h, Pt ext = 100 Pa.
Testováno podle EN 9614-2 pro povrch a EN 5136 pro potrubí. Hladina akustického výkonu LWA klesá se zploštěním objemu vzduchu a snižováním protitlaku. Hladina akustického tlaku LPA v dané vzdálenosti bude záviset na akustických podmínkách v místě instalace.


1: Venkovní vzduch
2: Vzduch (přívod)
3: Odvzdušnění(odsávání)
4: Zpětný vzduch
Všechny údaje jsou v mm.

Moderní dotykový ovladač HMI je dodáván z výroby se základním nastavením, které lze přizpůsobit provozním přáním a požadavkům, aby se dosáhlo optimálního provozu a využití jednotky.
Dotykový panel HMI poskytuje dobrý přehled o aktuálním provozu jednotky, má jasnou strukturu nabídky pro uživatele i pro instalačního technika. Na hlavní obrazovce je možné zvolit dvě různé vizualizace.
Externí komunikace
Ovladání HMI má otevřený protokol Modbus RS485, se kterým lze komunikovat prostřednictvím nadřazených systémů. Připojení Modbus se používá např. do systému Loxone, EATON xComfort, Inels, Schneider IHC nebo KNX.
| Přehled funkcí | (+) Standard (-) Příslušenství | |
| Výstrahy | Popis chyb výstrahy. Protokol výstrah s 16 nejnovějšími záznamy | + |
| Centrální výstraha | Řídicí jednotka HMI má výstupní signál, který se aktivuje v případě alarmu, a může např. připojeno k externí automatizaci | |
| Výměna filtru | Časově řízené upozornění na zanesení filtru nastavitelné na 30/90/180/360 dní | + |
| Přehled dat | Přehled aktuálního provozu např. teploty, otáčky ventilátoru atd. | + |
| Týdenní program | Ovládání HMI je vybaveno 3 týdenními programy, které lze individuálně nastavit (tovární nastavení vypnuto) | + |
| Vlhkost | Umožňuje vyšší nebo nižší intentitu větrání při vysoké / nízké vlhkosti | + |
| Kvalita vzduchu | Umožňuje nastavit ventilaci podle úrovně CO2 ve vzduchu. | – |
| Provoz za nízkých teplot | Zabraňte nízké vlhkosti v domácnosti aktivací nízké ventilace při nízkých venkovních teplotách. | + |
| Nastavení teplot | Možnost ovládání provozu jednotky v závislosti na teplotě v místnosti | + |
| Letní/Zimní provoz | Jednotku lze nastavit pro letní a zimní provozu s automatickým přepínáním. | |
| Jazyk | Na ovládacím panelu si můžete vybrat z více než 10 jazyků. | + |
| Uživatelská oprávnění | Nabídka na ovládacím panelu je rozdělena do 3 uživatelských úrovní: Uživatel / Instalační technik / Výrobce | + |
| Uživatelská volba 1 | Umožňuje přepsat provozní režim pomocí externího bezpotenciálového signálu. | + |
| Uživatelská volba 2 | Další možnost přepsat provozní režim a výběr uživatele 1 pomocí externího bezpotenciálového signálu. | – |
| Výměna vzduchu | Plynulé nastavení čtyř stupňů ventilace. Přívodní a odtahový ventilátor lze nastavit individuálně | + |
| Předehřev | Integrovaný protimrazový předehřev, zajišťuje, že tepelný výměník nezamrzá. | |
| Odtávání | Automatická funkce založená na teplotě pro odmrazování protiproudých výměníků | + |
| Otevřené okno | Bezpečnostní funkce – větrací jednotka se zastaví, takže se dále nemůže ochladit dům. | + |
| Dohřev | Větrací jednotka může řídit externí dohřev podle aktuální teploty v místnosti. | + |
| Požární ochrana | Větrací jednotka může být připojena k externímu požárnímu systému nebo požárnímu termostatu, který vydává signál, zda by se jednotka vypnula nebo aby mohla pokračovat dále v provozu. | + |
| Konstantní regulace tlaku | Regulaci konstantního tlaku je možné instalovat jak na straně odváděného, tak přiváděného vzduchu. | – |
| Odložený start | Je možné aktivovat zpožděné spuštění ventilátorů, pokud např. jsou připojeny k uzavíracím klapkám. | + |
| Obnova nastavení | Je možné uložit aktuální nastavení a následně je znovu načíst. Je také možné znovu spustit zařízení v továrním nastavení | + |
| Ruční nastavení | Vybrané funkce jednotky lze otestovat ručně. | + |
| Funkce úspory energie | Variabilně lze nastavit funkce jednotky optimalizovaných podle požadavku a potřeb uživatele. | + |
| Modbus | Lze nastavit adresu Modbus jednotky, tovární nastavení je 30. | + |
| Datalog | Každých 1 – 120 minut jsou zaznamenávána provozní data jednotky. Výstrahy budou zaznamenány, jakmile k nim dojde. | + |
| Nastavení panelu | Uživatel si může zvolit vlastní motiv a barvu úvodní obrazovky a celého vzhledu displeje. | + |
Další informace o všech funkcích naleznete v softwaru a pokynech k instalaci jednotky.
