NILAN ESO
Rekuperační jednotka NILAN ESO patří mezi novinky v produkci NILAN pro rodinné domy. Když tato jednotka vznikala, kladl se důraz na minimalizaci zastavěného prostoru a spojení výhod legendární jednotky NILAN VP18 a vlajkové lodi NILAN Compact, který získal mnoho ocenění a je certifikovaný Passivhaus Institutem Darmstadt jako velmi úsporná jednotka vhodná pro pasivní domy. Jednotka ESO zajišťuje kompletní služby pro rodinné domy. Tím je myšleno, větrání s účinnou rekuperací, chlazení provozně zdarma při ohřevu vody a levný ohřev teplé vody. Jednotka NILAN ESO je schopna pojmout až 340 metrů krychlových vzduchu za jednu hodinu. Takový objem vzduchu je pro většinu rodinných domů naprosto dostačujícím. Samozřejmostí je, že chladicí i topný režim není závislý na teplotě vody v nádrži, po ohřátí vody jednotka chladí bez omezení dál, podobně jako ostatní aktivní jednotky NILAN, které nádrž nemají vůbec. Díky skvěle zvládnuté technologii nepotřebuje k chlazení a ohřevu vody zbytečně dva kompresory a to má značný vliv na provozní náklady. Jednotka ESO je netradiční jednotka, která na rozdíl od jiných větracích jednotek 100% rekuperuje teplo v odpadním vzduchu. Přes protiproudý výměník se až 95% energie rekuperuje v odpadním vzduchu pro ohřev venkovního. Zbývající energii využívá vestavěné tepelné čerpadlo k výrobě teplé užitkové vody. Díky vysoké rekuperaci tepla se může v zimě ve výměníku tvořit led. Avšak ovládání jednotky má účinnou funkci odmrazování, která se sepne pokud se na výměníku led začne vytvářet. Případně lze objednat model Polar s vestavěným předehřevem. Tím je zajištěno, že se ve výměníku netvoří led a po celou zimu je zajištěna úplná rekuperace tepla. Jednotka ESO má k dispozici softwarovou ochranu proti opaření 60°C, což znamená, že teplota v zásobníku teplé vody nepřekročí tuto. Pokud víte, že budete potřebovat hodně teplé vody, doporučujeme nainstalovat pod zásobník teplé vody fyzickou ochranu proti opaření, aby se teplota v zásobníku mohla zvýšit na 90°C. V krajním případě je možné použít spirálu uvnitř nádrže na rychlý ohřev vody, ale to samozřejmě zvyšuje spotřebu energií. Zároveň spirála funguje jako ochrana před bakteriemi, které by se mohly ve vodě nacházet. Jednotka je již v základním vybavení dodávána s regulací HMI. Jedná se o chytré ovládání, díky kterému máte možnost upravit chod jednotky dle vašich individuálních potřeb. Dále je zde také možnost připojit jednotku na nadřazené systémy jako je například LOXONE. Díky tomu jste schopni ovládat jednotku na dálku. Společnost NILAN neváhala a připravila LAN GATEWAY. Jedná se o malou krabičku, která přijde na jednotku. Díky tomuto produktu jste schopni monitorovat a hospodařit se svými jednotkami na dálku z pohodlí jednoduché a přehledné aplikace. Jednotka odvede velké množství práce a jejího pořízení nebudete litovat.
Objem vzduchu
Min: 75 m3/h
Max: 340 m3/h
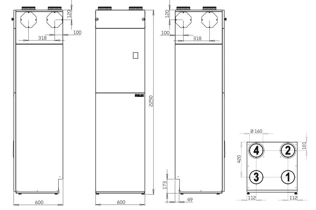
| Rozměry (Š x H x V) | 600 x 600 x 2250 mm, (nádrž: 180l) |
| Hmotnost | 160 kg |
| Skříň jednotky | Alu / Zn plech, lakovaný (bílá – RAL 9016) |
| Typ kompresoru | Pístový |
| Typ ventilátorů | Komorové EC ventilátory |
| Třída filtrace | ISO Hrubé > 90% (G4) |
| Ustálený proud | 1,8 A |
| Chladivo | R134a |
| Množství chladiva | 2250 g |
| Přípojná hrdla | Ø 160 mm |
| Odtok kondenzátu | PVC Ø20 x 1,5 mm |
| Napájení | 230V 50/60 Hz |
| Maximální příkon | 2,2 kW / 9,6 A |
| Standby spotřeba | 3W |
| Stupeň krytí | IP31 |
| Provozní teploty | -20 / +40 °C |
| Externí ztráta | <0,78 % |
| Vnitřní ztráta | <1,47 % |
| Záložní elektrospirála v nádrži | 1,5 kW |
Výkon
Větrací výkon standardní jednotky jako funkce větracího objemu a externí tlakové ztráty. Testováno podle normy EN13141-7 se filtrem dle třídy ISO hrubost > 90 % (G4) a bez dohřevu vzduchu. Hodnoty SEL obsahují celkovou spotřebu elektřiny jednotky bez ovladače.
Přepočítací faktor: J/m3 : 3600 = W/m3/h.
POZNÁMKA: Hodnoty SEL jsou měřeny a uváděny jako celková hodnota pro oba ventilátory.

Teplotní účinnost
Teplotní účinnost standardní jednotky s protiproudým výměníkem. Testováno podle EN308, účinnost za sucha.

COP vzduch / vzduch
Faktor tepelného výkonu COP přiváděný vzduch jako funkce venkovní teploty [° C] a objemového průtoku qv [m3 / h] podle EN 14511 při teplotě odpadního vzduchu 21 ° C.

modrá – COP
červená – topný výkon
DISPOZIČNÍ MNOŽSTVÍ TEPLÉ VODY z nádrže při ohřevu na 40 °C, 50 °C a 60°C.

Akustika
Zvuková data platí pro qv = 210 m3/h, Pt ext = 100 Pa.
Testováno podle EN 9614-2 pro povrch a EN 5136 pro potrubí. Hladina akustického výkonu LWA klesá se zploštěním objemu vzduchu a snižováním protitlaku. Hladina akustického tlaku LPA v dané vzdálenosti bude záviset na akustických podmínkách v místě instalace.


1:Venkovní vzduch
2:Vzduch (přívod)
3:Odvzdušnění (odsávání)
4: Zpětný vzduch

Moderní dotykový ovladač HMI je dodáván z výroby se základním nastavením, které lze přizpůsobit provozním přáním a požadavkům, aby se dosáhlo optimálního provozu a využití jednotky.
Dotykový panel HMI poskytuje dobrý přehled o aktuálním provozu jednotky, má jasnou strukturu nabídky pro uživatele i pro instalačního technika. Na hlavní obrazovce je možné zvolit dvě různé vizualizace.
Externí komunikace
Ovladání HMI má otevřený protokol Modbus RS485, se kterým lze komunikovat prostřednictvím nadřazených systémů. Připojení Modbus se používá např. do systému Loxone, EATON xComfort, Inels, Schneider IHC nebo KNX.
| Přehled funkcí | (+) Standard (-) Příslušenství | |
| Výstrahy | Popis chyb výstrahy. Protokol výstrah s 16 nejnovějšími záznamy | + |
| Centrální výstraha | Řídicí jednotka HMI má výstupní signál, který se aktivuje v případě alarmu, a může např. připojeno k externí automatizaci | |
| Výměna filtru | Časově řízené upozornění na zanesení filtru nastavitelné na 30/90/180/360 dní | + |
| Přehled dat | Přehled aktuálního provozu např. teploty, otáčky ventilátoru atd. | + |
| Týdenní program | Ovládání HMI je vybaveno 3 týdenními programy, které lze individuálně nastavit (tovární nastavení vypnuto) | + |
| Vlhkost | Umožňuje vyšší nebo nižší intentitu větrání při vysoké / nízké vlhkosti | + |
| Kvalita vzduchu | Umožňuje nastavit ventilaci podle úrovně CO2 ve vzduchu. | – |
| Provoz za nízkých teplot | Zabraňte nízké vlhkosti v domácnosti aktivací nízké ventilace při nízkých venkovních teplotách. | + |
| Nastavení teplot | Možnost ovládání provozu jednotky v závislosti na teplotě v místnosti | + |
| Letní/Zimní provoz | Jednotku lze nastavit pro letní a zimní provozu s automatickým přepínáním. | |
| Jazyk | Na ovládacím panelu si můžete vybrat z více než 10 jazyků. | + |
| Uživatelská oprávnění | Nabídka na ovládacím panelu je rozdělena do 3 uživatelských úrovní: Uživatel / Instalační technik / Výrobce | + |
| Uživatelská volba 1 | Umožňuje přepsat provozní režim pomocí externího bezpotenciálového signálu. | + |
| Uživatelská volba 2 | Další možnost přepsat provozní režim a výběr uživatele 1 pomocí externího bezpotenciálového signálu. | – |
| Výměna vzduchu | Plynulé nastavení čtyř stupňů ventilace. Přívodní a odtahový ventilátor lze nastavit individuálně | + |
| Předehřev | Integrovaný protimrazový předehřev, zajišťuje, že tepelný výměník nezamrzá. | |
| Odtávání | Automatická funkce založená na teplotě pro odmrazování protiproudých výměníků | + |
| Otevřené okno | Bezpečnostní funkce – větrací jednotka se zastaví, takže se dále nemůže ochladit dům. | + |
| Dohřev | Větrací jednotka může řídit externí dohřev podle aktuální teploty v místnosti. | + |
| Požární ochrana | Větrací jednotka může být připojena k externímu požárnímu systému nebo požárnímu termostatu, který vydává signál, zda by se jednotka vypnula nebo aby mohla pokračovat dále v provozu. | + |
| Konstantní regulace tlaku | Regulaci konstantního tlaku je možné instalovat jak na straně odváděného, tak přiváděného vzduchu. | – |
| Odložený start | Je možné aktivovat zpožděné spuštění ventilátorů, pokud např. jsou připojeny k uzavíracím klapkám. | + |
| Obnova nastavení | Je možné uložit aktuální nastavení a následně je znovu načíst. Je také možné znovu spustit zařízení v továrním nastavení | + |
| Ruční nastavení | Vybrané funkce jednotky lze otestovat ručně. | + |
| Funkce úspory energie | Variabilně lze nastavit funkce jednotky optimalizovaných podle požadavku a potřeb uživatele. | + |
| Modbus | Lze nastavit adresu Modbus jednotky, tovární nastavení je 30. | + |
| Datalog | Každých 1 – 120 minut jsou zaznamenávána provozní data jednotky. Výstrahy budou zaznamenány, jakmile k nim dojde. | + |
| Nastavení panelu | Uživatel si může zvolit vlastní motiv a barvu úvodní obrazovky a celého vzhledu displeje. | + |
Další informace o všech funkcích naleznete v softwaru a pokynech k instalaci jednotky.
