NILAN Comfort 450
V dnešním příspěvku bych se rád věnoval větrací jednotce NILAN Comfort 450. Toto zařízení je velmi energeticky úsporné a je vhodné pro větší rodinné domy nebo pro větrání komerčních prostor. Svým výkonem již přesahuje do kategorie průmyslových profesionálních jednotek. Dokáže vyvětrat až 525 metrů krychlových vzduchu za jednu hodinu. Zařízení Comfort 450 je vybaveno dvojicí velmi výkonných EC ventilátorů s konstantním průtokem vzduchu. Pokud ventilátory běží na první dva výkonnostní stupně, ventilátory jsou pouze velmi málo namáhány. To má následně značný vliv na životnost jednotky a náklady za energie. Jednotku Comfort 450 lze objednat jako levý nebo pravý model a díky dobré izolaci ji lze nainstalovat i mimo klimatickou clonu. Například do nevyužitého půdního prostoru. Ovládání HMI umožňuje uživatelům dokonalé řízení jednotky a její naprogramování v několika režimech. Přehledný display zobrazuje uživateli přehled o stavu jednotky, aktuálním výkonu, stavu filtrů a mnoho dalšího. Výkon lze nastavit přesně podle typu objektu a rozvodné soustavy. Což je velmi důležité pro dosažení maximálně efektivního provozu. K dispozici je samozřejmě možnost napojit tlačítka s funkcí zvýšeného odtahu pro rychlé provětrání WC, koupelen nebo kuchyní. Jednotka Comfort 450 je také schopná připojit se k nadřazeným systémům jako je například LAN GATEWAY od společnosti NILAN či LOXONE. Již v základním vybavení jednotka disponuje automatickou protimrazovou ochranou, která hlídá provoz jednotky v zimním období. Avšak pro ještě větší komfort během celého zimního období i za tuhých mrazů. Doporučujeme zákazníkům jednotku doplnit o předehřev vzduchu. Uvnitř jednotky se nachází filtry, které jsou k dostání ve dvou variantách. Prachové a pylové. Pylové jsou vhodné pro lidi, kteří trpí alergiemi. Pouze je nutné se o filtry starat a pravidelně je měnit. Výměnu doporučujeme zhruba jednou za tři měsíce. Avšak to záleží především na kvalitě vzduchu v okolí vaší stavby. Výměna filtrů je velmi snadný úkol a nezabere vám mnoho času. Comfort 450 je důkladně testovaná jednotka, která je na trhu již více než patnáct let. Samozřejmostí jsou tedy neustálé aktualizace, protože firma NILAN je si vědoma kvalitou tohoto zařízení. Nákup vám mohu pouze doporučit.
Objem vzduchu
Min: 250 m3/h
Max: 525 m3/h
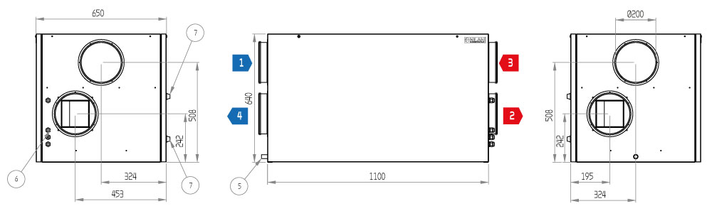
| Rozměry (Š x H x V) | 1100 x 650 x 640 mm |
| Hmotnost | 72 kg |
| Skříň jednotky | Alu / Zn plech |
| Typ výměníku tepla | Křížově – protiproudý (plast) |
| Typ ventilátorů | Komorové EC ventilátory |
| Třída filtrace | Standard podle ISO hrubosti > 90% (G4) |
| Účinnost výměníku | 86 % |
| Nejvyšší výkon | 525 m3/h (při 100 Pa) |
| SEVC třída | A |
| Přípojná hrdla | Ø 200 mm |
| Odtok kondenzátu | PVC Ø20 x 1,5 mm |
| Napájení | 230V 50/60 Hz |
| Maximální příkon | 370 W / 2,9 A |
| Standby spotřeba | 3 W |
| Stupeň krytí | IP31 |
| Provozní teploty | -20 / +40 °C |
| Externí ztráta | 0,7 % |
| Vnitřní ztráta | 1,9 % |
| Klasifikace tepelných ztrát | T2 |
Výkon
Větrací výkon standardní jednotky jako funkce větracího objemu a externí tlakové ztráty. Testováno podle normy EN13141-7 se filtrem dle třídy ISO hrubost > 90 % (G4) a bez dohřevu vzduchu. Hodnoty SEL obsahují celkovou spotřebu elektřiny jednotky bez ovladače.
Přepočítací faktor: J/m3 : 3600 = W/m3/h.
POZNÁMKA: Hodnoty SEL jsou měřeny a uváděny jako celková hodnota pro oba ventilátory.

Účinnost rekuperace
Účinnost rekuperace standardní jednotky s protiproudým výměníkem. Testováno podle EN13141-7, účinnost za sucha.

Akustika
Zvuková data pro qV = 300 m3/h a Pt, ext = 100 Pa podle EN 9614-2 pro povrchy a EN 5136 pro potrubí.
Hladina akustické hladiny LWA klesá s klesajícím objemem vzduchu a klesajícím protitlakem.
Hladina akustického výkonu LpA v dané vzdálenosti bude záviset na akustických podmínkách v místě instalace.


Všechny rozměry v mm
1: sání venkovního vzduchu
2: přívod vzduchu do místností
3: odtah odpadního vzduchu
4: výfuk vzduchu ven
5: odvod kondenzátu
6: kabelové průchodky

Moderní dotykový ovladač HMI je dodáván z výroby se základním nastavením, které lze přizpůsobit provozním přáním a požadavkům, aby se dosáhlo optimálního provozu a využití jednotky.
Dotykový panel HMI poskytuje dobrý přehled o aktuálním provozu jednotky, má jasnou strukturu nabídky pro uživatele i pro instalačního technika. Na hlavní obrazovce je možné zvolit dvě různé vizualizace.
Externí komunikace
Ovladání HMI má otevřený protokol Modbus RS485, se kterým lze komunikovat prostřednictvím nadřazených systémů. Připojení Modbus se používá např. do systému Loxone, EATON xComfort, Inels, Schneider IHC nebo KNX.
| Přehled funkcí | (+) Standard (-) Příslušenství | |
| Výstrahy | Popis chyb výstrahy. Protokol výstrah s 16 nejnovějšími záznamy | + |
| Centrální výstraha | Řídicí jednotka HMI má výstupní signál, který se aktivuje v případě alarmu, a může např. připojeno k externí automatizaci | |
| Výměna filtru | Časově řízené upozornění na zanesení filtru nastavitelné na 30/90/180/360 dní | + |
| Přehled dat | Přehled aktuálního provozu např. teploty, otáčky ventilátoru atd. | + |
| Týdenní program | Ovládání HMI je vybaveno 3 týdenními programy, které lze individuálně nastavit (tovární nastavení vypnuto) | + |
| Vlhkost | Umožňuje vyšší nebo nižší intentitu větrání při vysoké / nízké vlhkosti | + |
| Kvalita vzduchu | Umožňuje nastavit ventilaci podle úrovně CO2 ve vzduchu. | – |
| Provoz za nízkých teplot | Zabraňte nízké vlhkosti v domácnosti aktivací nízké ventilace při nízkých venkovních teplotách. | + |
| Nastavení teplot | Možnost ovládání provozu jednotky v závislosti na teplotě v místnosti | + |
| Letní/Zimní provoz | Jednotku lze nastavit pro letní a zimní provozu s automatickým přepínáním. | |
| Jazyk | Na ovládacím panelu si můžete vybrat z více než 10 jazyků. | + |
| Uživatelská oprávnění | Nabídka na ovládacím panelu je rozdělena do 3 uživatelských úrovní: Uživatel / Instalační technik / Výrobce | + |
| Uživatelská volba 1 | Umožňuje přepsat provozní režim pomocí externího bezpotenciálového signálu. | + |
| Uživatelská volba 2 | Další možnost přepsat provozní režim a výběr uživatele 1 pomocí externího bezpotenciálového signálu. | – |
| Výměna vzduchu | Plynulé nastavení čtyř stupňů ventilace. Přívodní a odtahový ventilátor lze nastavit individuálně | + |
| Předehřev | Integrovaný protimrazový předehřev, zajišťuje, že tepelný výměník nezamrzá. | |
| Odtávání | Automatická funkce založená na teplotě pro odmrazování protiproudých výměníků | + |
| Otevřené okno | Bezpečnostní funkce – větrací jednotka se zastaví, takže se dále nemůže ochladit dům. | + |
| Dohřev | Větrací jednotka může řídit externí dohřev podle aktuální teploty v místnosti. | + |
| Požární ochrana | Větrací jednotka může být připojena k externímu požárnímu systému nebo požárnímu termostatu, který vydává signál, zda by se jednotka vypnula nebo aby mohla pokračovat dále v provozu. | + |
| Konstantní regulace tlaku | Regulaci konstantního tlaku je možné instalovat jak na straně odváděného, tak přiváděného vzduchu. | – |
| Odložený start | Je možné aktivovat zpožděné spuštění ventilátorů, pokud např. jsou připojeny k uzavíracím klapkám. | + |
| Obnova nastavení | Je možné uložit aktuální nastavení a následně je znovu načíst. Je také možné znovu spustit zařízení v továrním nastavení | + |
| Ruční nastavení | Vybrané funkce jednotky lze otestovat ručně. | + |
| Funkce úspory energie | Variabilně lze nastavit funkce jednotky optimalizovaných podle požadavku a potřeb uživatele. | + |
| Modbus | Lze nastavit adresu Modbus jednotky, tovární nastavení je 30. | + |
| Datalog | Každých 1 – 120 minut jsou zaznamenávána provozní data jednotky. Výstrahy budou zaznamenány, jakmile k nim dojde. | + |
| Nastavení panelu | Uživatel si může zvolit vlastní motiv a barvu úvodní obrazovky a celého vzhledu displeje. | + |
Další informace o všech funkcích naleznete v softwaru a pokynech k instalaci jednotky.

